P2級實驗室
一、P2實驗室的定義
P2實驗室是生物安全防護二級實驗室,世界衛生組織(WHO)根據致病能力和傳染的危險程度等,將傳染性微生物劃分為4類;根據設備和技術條件,將生物實驗室也分為4級(一般稱為P1、P2、P3、P4實驗室),1級最低,4級最高。
|
級別 |
適用范圍 |
|
p1 |
實驗室一般適用于對健康成年人無致病作用的微生物; |
|
p2 |
適用于對人和環境有中等潛在危害的微生物; |
|
p3 |
適用于主要通過呼吸途徑使人傳染上嚴重的甚至是致死疾病的致病微生物或其毒素; |
|
p4 |
適用于對人體具有高度的危險性,通過汽溶膠途徑傳播或傳播途徑不明、目前尚無有效疫苗或治療方法的致病微生物或其毒素。 |

二、P2實驗室建設設計依據
1.<醫藥工業潔凈廠房設計規范>(1997年)
2.<潔凈廠房設計規范>(1984)
3.<采暖通風與空氣調節設計規范>(GBJ19-87)
4.<消毒管理辦法>(衛生部1992)6.
5.甲方提供的實驗室平面布置圖等有關技術資料和要求;

三、P2實驗室要求
P2實驗室主要用于初級衛生服務、診斷和研究,國標明確了相應要求,其實驗對象的危害等級為Ⅱ級(中等個體危害,有限群體危害),適用于對人和環境有中等潛在危害的微生物.具體定義為“能引起人類或動物發病,但一般情況下對健康工作者、群體、家畜或環境不會引起嚴重危害的病源體,代表病原體:流感病毒。實驗室感染不導致嚴重疾病,具備有效治療和預防措施,并且傳播風險有限”。據此,待頒布的國標《生物安全實驗室建筑技術規范》對BLS-2實驗室規定了以下技術指標(靜態):
1、潔凈度:萬級--十萬級
2、與室外方向相鄰相通房間的壓差:無要求
3、溫度℃:18~27
4、相對濕度%:30~70
5、噪聲dB(A):≤60
6、最低照度lx:300
備注:上訴指標是建立P2實驗室的最低要求,建設者可根據實際需要適當提高相應指標,如潔凈度、壓差等。

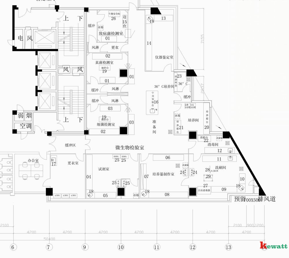
P2實驗室整體平面布局圖
四、P2實驗室的系統組成部分
1、實驗室結構裝修:
實驗室的吊頂及圍護隔斷均采用聚苯乙烯夾心彩鋼板,厚度為50mm,鋼板為寶鋼0.5mm,(彩鋼板優點是重量輕、機械強度高、防水及保溫性能好);墻角處及墻與地面、墻與頂板之間夾角均采用鋁合金圓弧陰陽過渡及密封,所有配套鋁合金型材均采用電泳型材,以防止以后實驗室長期使用消毒時導致鋁材氧化。實驗室地面采用進口塑膠PVC地板無縫連接,具有耐酸堿腐蝕、抗磨損及防滑等特點。
P2實驗室裝修細節圖

P2實驗室傳遞區 P2實驗室試劑樣品區

P2實驗室緩沖區 P2實驗室生物安全柜與清洗區

P2實驗室消防區 P2實驗室風淋室

P2實驗室門 P2實驗室圍房與半落地窗

P2實驗室清洗區 P2實驗室吊頂與高效過濾器
2、各實驗間潔凈度、壓力梯度:
實驗室按常規劃分主要分污染區及實驗操作室。
操作室潔凈級別為10000級,換氣次數不小于40次/小時,房間壓差為-40Pa(對大氣);
消毒滅菌間潔凈級別為100000級,換氣次數不小于40次/小時,房間壓差為-40Pa(對大氣);
二次緩沖間潔凈級別為100000級,換氣次數不小于30次/小時,房間壓差為-30Pa(對大氣);
半污染區潔凈級別為100000級,換氣次數不小于30次/小時,房間壓差為-20Pa(對大氣);
潔凈走廊間潔凈級別為100000級,換氣次數不小于30次/小時,房間壓差為+10Pa(對大氣);
準備間潔凈級別為100000級,換氣次數不小于30次/小時,房間壓差為+10Pa(對大氣);
緩沖間潔凈級別為100000級,換氣次數不小于30次/小時,房間壓差為+10Pa(對大氣);
內更淋浴室無潔凈要求、設獨立排風,換氣次數不小于10次/小時;
在實驗室隔壁設獨立監控室及空調機房間。

3、實驗室氣流組織方式:
從安全角度考慮本系統設計為全新風定向直流系統,生物安全實驗室采用全新風頂送單側下排形式,氣流方向為潔凈區流向污染區(從緩沖更衣區→淋浴室→次更衣→潔凈走廊→準備間→半污染區→一次緩沖→穿防護服→二次緩沖→操作室→生物安全柜)。實驗室外空氣經過空調處理后通過中效風機過濾箱過濾,通過管道再經過房間高效過濾器過濾后送入房間,再通過裝有高效過濾器的排風口通過排風管道由高效過濾排風箱二次高效過濾后,經臭氧物理滅菌后排至室外。
4、空調系統:
生物安全實驗室采用恒溫恒濕空調機組,提供冬夏季冷熱負荷;在冬季尖峰時增加啟動電加熱器,以滿足冬季熱負荷。
5、實驗室送排風系統:
實驗操作室、二次緩沖、半污染區、一次緩沖及準備間、清潔更衣區、潔凈走廊,采用一套送風機組,一套排風機組,利用送排風風量比維持房間負壓,防止有害污染物外泄。其中排風機組采用雙風機,一用一備,在運行排風風機發生故障時能連鎖啟動備用風機,以保證實驗室能連續正常運轉,不妨礙正常的實驗工作。
6、房間壓力顯示、報警系統:
實驗室設壓力顯示及超壓、欠壓報警系統。當室內壓力超過或小于設定壓力的警戒值時,報警器就會發出聲光報警,提醒實驗工作人員。
7、電子連鎖系統:
實驗室所有緩沖間采用電子互鎖門。當緩沖間任一道門打開時,與之互鎖的另一道門無法打開(采用斷電開式電子鎖),以防止兩道門同時打開實驗室失壓。在所有門上均安裝進口閉門器能自動關閉。
8、風量自動控制系統:
實驗室內主要實驗間房間送風主管上安裝進口機械動作式(無故障)定風量調節閥。房間高效排風口安裝變風量調節閥,隨著高效過濾器阻力變化,由室內的壓力傳感器把信號反饋給壓力控制器,壓力控制器控制風閥執行機構開啟度調節風量,保持實驗室內壓力恒定。
9、防氣流倒灌系統:
生物安全防護實驗室新排風設置電動密閉閥(連鎖送排控制)風機以防止關機時空氣回流,并能封閉消毒。
10、實驗室物品進出:
實驗操作所需的物品、器械等須通過半污染區與準備間相連的不銹鋼傳遞窗(帶紫外線殺菌燈)進入;實驗室廢棄物在實驗操作室就地高壓消毒后,經消毒滅菌室二次高壓滅菌后通過與污物緩沖室相連的不銹鋼傳遞窗(帶紫外線殺菌燈)傳出后再處理。


11、實驗室氣體管道連接:
生物安全防護實驗室內安裝實驗用氣管接頭、閥門;以避免儀器用氣的鋼瓶直接放入實驗室操作區內。
12、數據傳輸系統:
生物安全防護實驗室內安裝網絡線、電話傳真線以便實驗數據能傳至室外。
13、監控系統:
生物安全防護實驗室內設閉路電視監控錄像系統。監控系統由1臺主機多個變焦攝像頭組成,分別控制實驗室操作間、半污染區、準備間等,主機安裝在中央控制室內;便于觀察各實驗間的操作過程,又能避免參觀人員進入實驗室。
14、通訊系統:
對講系統組成:由設置在中央控制室及各個實驗間的一帶二電話機組成。
15、門禁系統:
在準備時門入口安裝一套高識別密碼鎖。可將實驗人員的信息入數據庫,并可根據需要對數據進行調整,確保實驗室安全。
16、配電系統形式及配置:
1)、系統形式為TN-S220V/380V配電系統,采用專線饋線供電。配電室設總配電箱一臺,送排風專用連鎖啟動、停止配電箱一臺,控制送排風風機及連鎖備用風機,照明控制箱一臺,控制實驗室照明、插座、生物安全柜。各實驗室照明全部采用氣密式凈化燈具,吸頂安裝,同時每個房間至少有一組凈化燈帶應急電源。實驗室每個出口處設置發光的指示標志燈。實驗室內設置紫外線殺菌燈。
2)、生物安全實驗室內生物安全柜配有(1小時)UPS不間斷電源,以防止突然停電時能有應急處理和撤離時間。
3)、室內各用電點位置及高度在施工時均可按用戶要求調整。其它各電氣線路均穿阻燃PVC管敷設在彩鋼板吊頂上和夾心層內。
五、科瓦特P2實驗室案例欣賞:

生物安全實驗室菌種保存室 細胞操作區


生物安全實驗準備間 P2主實驗區


細菌檢測室 細胞培養室
六、P2實驗室管理制度
1.只有經過授權的人員才允許進入P2實驗室工作區。
2.16歲以下兒童禁止進入P2實驗室工作區。
3.實驗人員要接受相應預防性生物制品的免疫接種。
4.禁止將無關動物帶入實驗區。
5.外單位人員來訪、參觀、進修,必須經中心主管部門批準,未經批準不得進入P2實驗室工作區。
6.外來人員進入P2實驗室,須由本室人員陪同,在嚴格遵守有關規定的條件下方可進入,同時填寫《外來人員進出實驗室特殊區域登記表》。
7.限制免疫耐受者進入實驗室。
8.限制正在接受免疫抑制劑者進入實驗室。
9.嚴禁在實驗室內吸煙、飲食、化妝等。
2.進入程序
2.1、進入P2實驗室,伸手打開緩沖間內空調和生物安全柜按鈕,使實驗室和生物安全柜凈化10分鐘以上。方可進入實驗室進行實驗。
2.2、將實驗所需材料和物品放入生物安全柜中。
2.3、進入P2實驗室緩沖區,關閉外門,在工作服外加穿P2實驗室專用罩衣(緊口,后系帶),戴一次性口罩、帽子和戴兩層手套,換穿P2實驗室專用鞋。需要時打開照明按鈕。
2.4、進入實驗室工作區,首先打開照明按鈕,打開前玻璃門,調節到要求的高度。將實驗所需物品一次性放入實驗臺內,擺放要有秩序且要相對區分清潔物與污染物,凈化生物生物安全柜10分鐘左右。
2.5、觀察實驗區負壓表指示數值是否在工作要求范圍內,如不能滿足要求則進行負壓調節。觀察溫濕度計,填寫溫濕度計使用記錄。
2.6、實驗人員手臂放進生物安全柜內大約1分鐘后,即可按無菌要求進行實驗操作。
2.7、完成整個實驗操作后,將使用過的物品進行分類處理。消毒整個工作臺面,再讓排風至少運行10分鐘。
2.8、放下前玻璃門,打開生物生物安全柜紫外線燈進行毒。
2.9、離開實驗操作區前脫去第二層手套放到指定容器內消毒處理。
2.10、填寫儀器使用記錄。
3.實驗后物品、污染物處理
3.1、對不可回收的污染物品小心包扎后,在高壓滅菌器內按規定要求進行高壓滅菌處理。然后按醫用垃圾交中心統一處理。
3.2、對可回收的污染物品小心包扎后,在高壓滅菌器內按規定要求進行高壓滅菌處理。之后轉入洗刷間進行洗刷。
3.3對一次性實驗用品放入容器內高壓滅菌,然后按醫用垃圾交中心統一處理。
3.4對不可高壓滅菌處理的物品,應選擇適當的消毒劑進行浸泡消毒。可回收的物品,送洗刷室;不可回收的物品,按中心“三廢”處理的有關規定執行。
4、出實驗室程序
4.1、打開實驗室內門,出來后隨手關閉。將實驗室專用罩衣脫下,掛在緩沖區,待稍后進行紫外線消毒。脫掉一次性帽子、口罩和手套,放入待消毒的垃圾筒內,按門鎖按鈕,打開外門,更換拖鞋,打開紫外線按鈕,同時關閉排風按鈕,然后關閉外門。注:若進入時打開照明,則此時應關閉。
4.2、如實驗過程中在傳遞窗傳遞過污染性物品,在實驗后應進行紫外線消毒。
4.3、待消毒完畢后(至少30分鐘),關閉生物安全柜和紫外線按鈕。
5、注意事項
5.1應保持實驗室環境清潔。
5.2、工作臺內部空間需用消毒劑擦洗,如消毒劑具有腐蝕性,要用自來水清洗臺面,以避免腐蝕。
5.3、操作臺內的實驗器具應避免阻擋前后的穿孔網格,并且避免把東西卷入其中。所有的操作應該在距離前面的格柵約10厘米以內的工作面上進行。
5.4、操作時應動作緩慢,減少不必要的手和手臂伸進和伸出空氣屏障,以免影響氣流。
5.5、工作臺在操作時,應盡量減少實驗室內開門、關門,人員走動等情況,以免影響室內氣流。
5.6、通常情況下,在生物安全柜里面不要使用酒精燈或類似的明火,因為他們會破壞氣流模式、損壞HEPA過濾器,并且有火災的危險(除非有特殊的要求)。
5.7、警報燈或警鈴響時切勿繼續操作。
5.8、一旦工作臺在操作時出現意外事故,須在這些東西搬出之前,連同工作臺在內進行全面消毒,如果溢出的污水或液體集中在排液槽中,必須采取緊急措施將污水排出。同時填寫《實驗室潛在危險材料溢出或淺出記錄》。
5.9、試驗結束后將試驗物品移出生物安全柜,不得將生物安全柜當成儲物箱。
同類文章排行
- 實驗室規劃建設需要注意的地方
- 科瓦特2023年春節放假通知
- 成功簽約常熟立訊實驗室改造工程
- 喜訊,簽約完美生命科技研究院SPF動物實驗室
- 中山科瓦特國慶中秋放假通知
- 簽約中山板芙醫院PCR檢測室工程
- 喜訊 中標鴻基創能科技公司實驗室工程
- 成功簽約廣東威科質量檢測公司SPF級動物實驗室
- 2019年,科瓦特機電開工大吉
- 2019年春節放假通知
最新資訊文章
- 實驗室設計公司如何選擇
- 實驗室裝修設計方案需考慮哪些因素
- 實驗室裝修要考慮哪些因素
- 建設一個實驗室要花費多少錢,周期多長
- 實驗室裝修施工流程有哪些
- 實驗室空間如何布局
- 實驗室設計要注意那些要點
- 實驗室臺如何布局更好
- 實驗室裝修細節大揭秘
- 實驗室設計周期是多久?






